トップページ > 秋田市新屋朝日町 

販売物件情報

  • お気に入りリストを見る
  • 物件情報を印刷する
  • プリンタの設定で「背景を印刷する」と設定しないと「背景画像」が印刷されないことがあります。印刷の際には、必ず「背景を印刷する」設定にしてください。

中古一戸建て

秋田市新屋朝日町 

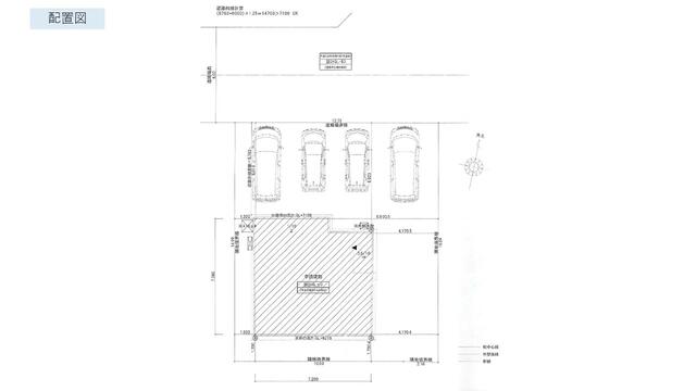
画像

この物件のお支払い例

頭金0円/ボーナス払い0円

物件価格3,400万円

月々の支払い94,010

※上記支払例の借入条件:金利0.875%、借入総額3,400万円、借入期間35年

所在地・交通

所在地 秋田市新屋朝日町 
最寄駅 羽越線 羽後牛島 徒歩分数 43分
最寄バス停 徒歩分数
小学校校区 秋田市立勝平小学校 中学校校区 秋田市立勝平中学校

※学校区は住所から自動判定したものであり、保証できる情報ではございません。正確な学校区はお問い合わせ下さい。

お問い合わせフォームはこちら

「人型アイコン」を地図上にドラッグすることで『Google Street View』に切り替わります。

※地図上の「対象地」は「〒010-1613 秋田県秋田市新屋朝日町」の場所を指しています。実際の場所ではない場合がございます。詳しくはお問い合わせください。

お問い合わせフォームはこちら

物件概要

価格 3,400万円(↓6.8%値下がり 種目 中古一戸建住宅
間取り 3LDK 間取り内訳 洋5.2畳×2室 洋8畳×1室
土地面積 191.22㎡ 私道面積
建物面積 93.56㎡ 建物構造規模 木造 2階建
築年月(竣工月) 2022年4月 駐車場  
建ぺい率/容積率 60%/200% 都市計画 市街化区域
接道状況 北6m 公道 接面12.7m    
地目 宅地
土地権利 所有権 地勢 平坦
用途地域 第一種中高層住居専用地域
現況 空家 取引態様 媒介
建築確認番号

取引条件等

引渡し 相談

その他

設備 温水洗浄便座、追焚機能、システムキッチン、カウンターキッチン、IHクッキングヒーター、食器洗浄乾燥機、洗髪洗面化粧台、照明器具、電気、下水道、複層ガラス、エアコン、モニタ付インターホン、駐車場3台分、[バス1坪以上][火災警報器等設置済]
特徴 オール電化、24時間換気システム、[建築確認完了検査済証]
諸条件・相談
情報登録日 2025年2月15日 情報更新予定日 2025年12月31日
物件番号 12455

中古+リフォームお支払い例

プラン
頭 金 万円

月々のお支払い106,115

ボーナス払い0円


※上記支払例の借入条件:金利0.875%、借入総額3,837万円、借入期間35年

この物件を見た人の多くは下記の物件も見ています!
秋田市牛島東4丁目  [2,450万円] [4LDK]
秋田市仁井田二ツ屋2丁目  [2,590万円] [3SLDK]
秋田市茨島4丁目  [2,150万円] [3LDK]
秋田市大住1丁目  [2,850万円] [3LDK]
最近見た物件

ページの先頭へ

Copyright (C) 秋田中古住宅専門店, All Rights Reserved.